Ågatan 14, Centrum

Industrilokal i fantastiskt läge

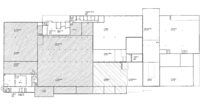
Fastigheten är belägen i ett industriområde mellan järnvägen (markområde ägt av
Banverket) och Lekarydsån i den nordöstra delen av Alvesta.

Tomtarealen uppgår till 37 380 m2.

Kommunal och kommersiell service finns i centrala Alvesta.
Fastigheten har industrispår från järnväg in i byggnaden.

På fastigheten finns en 1-3 våningars industribyggnad av sten med källare under en mindre del av
byggnaden.

Byggnaden uppfördes 1949 och är successivt delvis om- och tillbyggd fram till 1997.

Byggnaden inrymmer idag kontor, personalutrymmen, produktionslokaler, lager och kallager.

Ventilation finns i form av mekanisk till- och frånluftsventilation. I kontorsutrymmen finns
komfortkyla.

Kommunikationer

Kort promenadavstånd till Alvesta tågstation.

Skyltläge

Bra skyltläge.

Typ:
Area:
Adress: Ågatan 14
Område: Centrum
Stad: Alvesta

Kontaktperson

Petter Nordlinder
petter.nordlinder@skandrenting.se